Verslag informatiebijeenkomst flexwoningen - 8 december
Datum: maandagavond 8 december 2025, 19:00–20:30
Locatie: Raadzaal, Gemeentehuis Nederweert
Aanwezig: Wethouder Boris Meessen, Marcel Tinnemans, Winand Bijlmakers, Harold van der Haar, Eric van Gulick, Samad Houbban (Wonen Limburg), Dave Horsten (Wonen Limburg), Ouassim Khatraoui (projectleider Flexwonen), Lennart van Gameren (gastheer), Marieke de Bode, circa 40 bewoners.
Opzet van de avond
De derde participatiebijeenkomst had de vorm van een plenaire bijeenkomst, met een plenair openingswoord door de gastheer van de avond (Lennart van Gameren) en de wethouder (Boris Meessen). Daarna konden de genodigden de verschillende panelen bekijken met daarop de uitkomsten van de stedenbouwkundige inpassing en een overzicht van de verwerkte participatie input. Centraal stond dan ook het tonen van die stedenbouwkundige inpassing bij De Treff en Hoebenakker, en hoe de input uit de vorige participatieavond in de plannen is verwerkt. Bezoekers stelden vragen over de woningen, gemaakte keuzes en het proces. De gemeente benadrukte dat de plannen nog langs het College en de gemeenteraad gaan voor besluitvorming over vervolgstappen.
Doel van de avond
Het doel was om het ontwerp te presenteren, helderheid te bieden over gemaakte keuzes en aanvullende zorgen en vragen op te halen. De gemeente wil hiermee een zorgvuldig en betekenisvol participatieproces waarborgen, conform de Omgevingswet.
Wat is er opgehaald?
Onderstaand wordt per locatie samengevat welke vragen en opmerkingen de revue passeerden.
Locatie De Treff
In de onderstaande afbeeldingen worden het stedenbouwkundig plan en de ‘opbrengstmatrix’ voor De Treff getoond. In deze laatste staat weergegeven hoe er met de eerder opgehaalde informatie uit de vorige participatieavond is omgegaan.


Op de derde participatieavond hebben bewoners van De Treff opnieuw zorgen geuit over de geschiktheid van de locatie, verkeersveiligheid en procestransparantie:
- Extra locatie versus alternatieve locatie
De gemeente heeft altijd gecommuniceerd dat het in ieder geval De Treff en Hoebenakker op haalbaarheid wil onderzoeken. Zo heeft het College op 8 april 2025 (BW-25-055180) besloten om verder onderzoek te doen naar de plangebieden van De Treff en Hoebenakker, waar deze 3 participatieavonden onderdeel van uitmaken.
Desalniettemin zijn er bewoners van mening dat er alternatieve locaties mogelijk zijn. Deze bewoners hebben tijdens de tweede bijeenkomst op 27 mei een locatie aangedragen die in hun ogen als alternatief zou kunnen dienen voor De Treff. Op deze avond staat het onderzoek naar extra locaties echter als parallel proces aan het proces voor De Treff en Hoebenakker beschreven. Dit komt omdat extra locaties verder worden onderzocht in een quickscan, en de aangedragen locatie onderdeel uitmaakt van deze quickscan.
Naast deze twee locaties wordt er gezocht naar extra locaties, zoals beschreven in de documenten: “Samenvatting poster” en “Aanwezigen locaties” van de eerste bijeenkomst (7 mei) en zoals beschreven in de documenten “Doel van de avond – spelregels” en “Aanvullende locaties” van de tweede bijeenkomst (27 mei). Deze zijn te vinden op https://www.nederweert.nl/flexwoningen. Overal wordt gesproken over “extra” en “aanvullende” locaties.
De gemeente begrijpt dat er bewoners zijn die de aangedragen locatie liever als “alternatief” zien en betreurt het als er een misverstand is ontstaan. Zowel de locaties uit de quickscan, als de Treff en Hoebenakker volgen een vergelijkbare verdere besluitvormingsprocedure langs College en Raad, waarin er gekeken wordt naar de complete haalbaarheid voor flexwoningen op die locatie. Hierin worden stedenbouwkundige-, planologische-, financiële-, en juridische haalbaarheid meegenomen, alsmede de participatierapportage.
- Inkijk en waardedaling
Een van de grotere zorgen die worden genoemd zijn verminderde privacy omdat de flexwoningen dicht bij de perceelgrens getekend staan. Dit wordt gekoppeld aan angst voor waardedaling van bestaande woningen. - Geen gemeentegrond beschikbaar
Bewoners vragen zich af waarom gekozen is voor deze plek als er geen gemeentelijke grond beschikbaar is, wat het gevoel versterkt dat er commerciële belangen meespelen. - Verkeer op Bredeweg
De Bredeweg wordt als druk en onveilig ervaren. Bewoners vrezen dat extra verkeersbewegingen door de flexwoningen de situatie verergeren. - Bewoners hebben moeite zich te vinden in de argumentatie
Argumenten van de gemeente worden door sommige bewoners als onlogisch ervaren. Er ontstaat bij sommigen een gevoel dat het plan daardoor koste wat kost doorgang vindt, zonder dat dit volgens hen de beste plek is. - Scepsis over cijfers en verdeling (1/3-regel)
Er worden vragen gesteld over de haalbaarheid van het handhaven op de verdeling van bewoners (1/3 statushouders, 1/3 spoedzoekers/starters, 1/3 Oekraïners). De woningcorporatie Wonen Limburg stelt dat dit in de samenwerkingsovereenkomst is opgenomen, in tegenstelling tot andere flexwoningprojecten - Zorgen over wadi bovengronds
Bewoners vragen of een bovengrondse wadi ongedierte zoals ratten of boommarters aantrekt. - Toekomstige situatie
“Wat gebeurt er als de oorlog in Oekraïne voorbij is?” – bewoners vragen zich af of de noodzaak voor flexwoningen dan nog blijft bestaan. - Sociale Huurwoningen
Diverse bewoners hebben zorgen geuit over een (te) grote concentratie aan sociale huurwoningen, mede door de andere woningbouwplannen in de nabijheid van de locatie. - Samenhang woningbouwplannen
Er wordt een totaal overzicht gemist van het gebied rondom de Treff met daarin de andere woningbouwprojecten die in ontwikkeling zijn en raakvlak hebben met deze ontwikkeling.
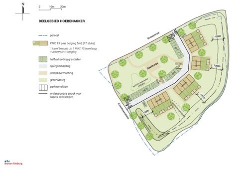
Locatie Hoebenakker
In de onderstaande afbeeldingen worden het stedenbouwkundig plan en de ‘opbrengstmatrix’ voor Hoebenakker getoond. In deze laatste staat weergegeven hoe er met de eerder opgehaalde informatie uit de vorige participatieavond is omgegaan.


Bij Hoebenakker lag de nadruk op verkeersdrukte, groenvoorziening en samenhang met andere projecten:
- Verkeersintensiteit Eisenhowerstraat
De Eisenhowerstraat wordt al als druk ervaren. Bewoners wijzen erop dat extra woningen de verkeersveiligheid onder druk kunnen zetten. Enkele bewoners hebben daarom gevraagd of het wegprofiel van de Eisenhowerstraat niet aangepast kan worden in verband met de verkeerstoename, temeer omdat deze straat de hoofdontsluiting vormt voor het achterliggende gebied met nieuwe woningbouwplannen. - Drukte door andere projecten
Er is zorg over cumulatie van projecten: op 15 december volgt een participatieavond voor een ander plan met +84 woningen. Bewoners vragen zich af wat de opgetelde impact is van deze ontwikkeling samen met de flexwoningen. - Keuze in boomsoort
Bewoners geven voorkeur aan beuken voor groenvoorziening, om een nette uitstraling en privacy te waarborgen. - Ambtelijk stuk gevraagd
Er is behoefte aan meer inzicht in het ambtelijke besluitvormingsproces van de gemeente Nederweert. - Voorbeeld gezinnen versus jongeren
Bewoners vragen hoe de samenstelling van bewoners eruitziet en of leefbaarheidsmedewerkers aan het project worden gekoppeld om sociale cohesie te bevorderen.
Vervolg participatie
De opgehaalde input wordt meegenomen in de definitieve uitwerking van het stedenbouwkundig ontwerp. De plannen voor de twee deellocaties Hoebenakker en De Treff komen ter besluitvorming in de gemeenteraad.
Parallel hieraan zal middels een quickscan aanvullende locaties verder worden onderzocht voor een mogelijke derde, en indien nodig, vierde deellocatie. De resultaten van deze quickscan worden tijdens een vierde participatiebijeenkomst behandeld. De gemeente blijft transparant over gemaakte keuzes en koppelt dit terug via de website en nieuwsbrieven. Bewoners worden hierbij uitgenodigd voor toekomstige participatiemomenten.